kb体育app官网入口官网

kb体育app官网入口官网

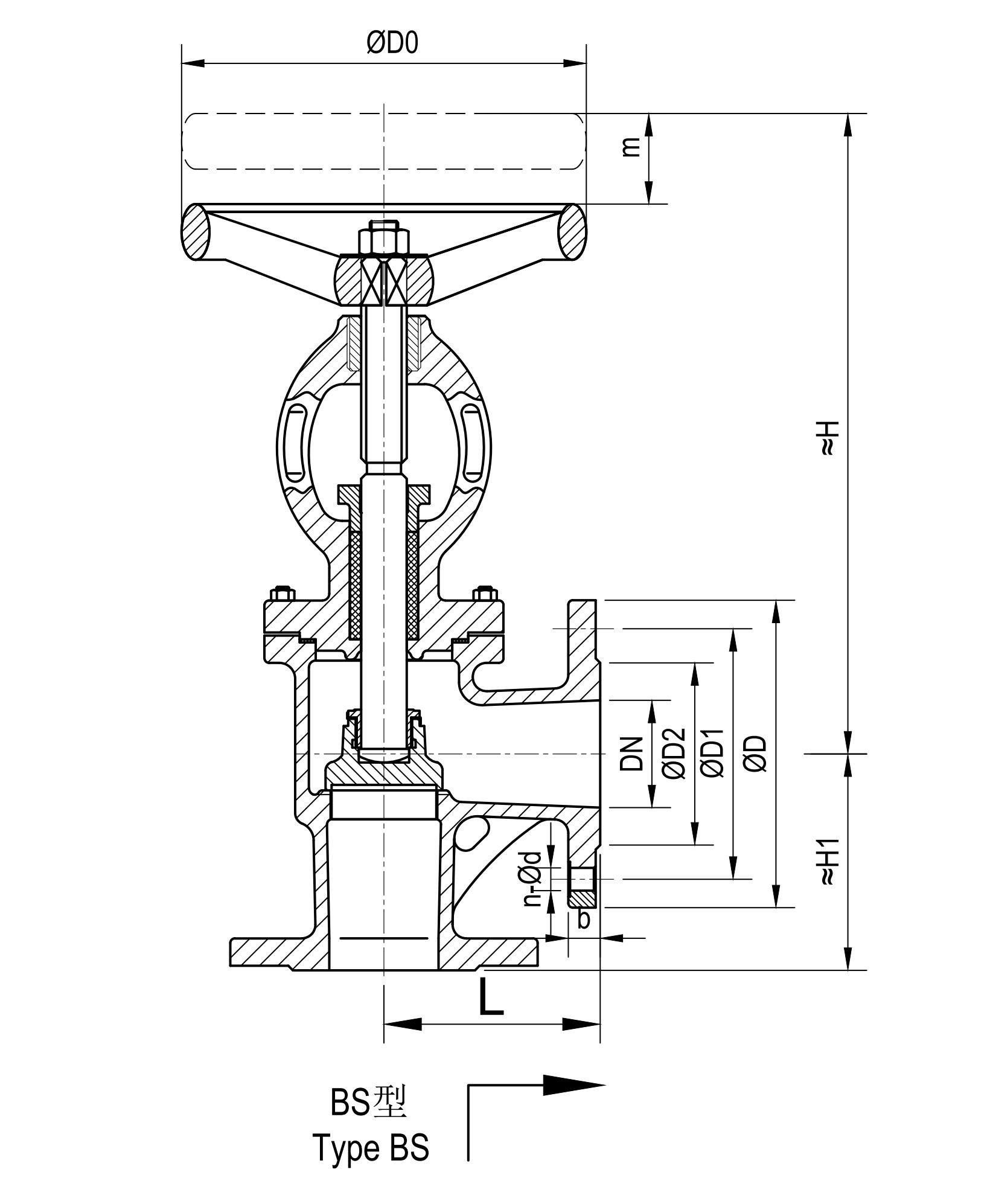
国标铸钢角式法兰截止阀

关注次数:1961次

商品类型:截止阀

上架时间:2024-07-01 13:42:59

产品描述:品名:国标铸钢角式法兰截止阀设计标准:GB/T584 工作温度:-10~200℃适用介质:海水、淡水、燃油和蒸汽操作方式:手动

咨询电话:4001-588-933

铸钢截止阀的结构比较简单,主要由阀体、阀盖、阀瓣、阀杆等组成。阀瓣与阀座呈密封状态,通过阀杆上下移动来实现开启和关闭。阀杆与手柄连接,在使用时可以通过手柄来控制阀门的开启和关闭情况。它的特点包括结构简单、‌重量轻、‌耐腐蚀性能好、‌耐磨性高。